Mặt bằng biệt thự 1 tầng đóng vai trò cực kỳ quan trọng trong việc tối ưu công năng, đảm bảo sự tiện nghi và tính thẩm mỹ cho toàn bộ ngôi nhà. Một bản thiết kế mặt bằng hợp lý không chỉ giúp không gian sống thoải mái mà còn tiết kiệm chi phí xây dựng và sử dụng lâu dài.
Trong bài viết này, chúng tôi sẽ giới thiệu 10+ mẫu thiết kế mặt bằng biệt thự 1 tầng đẹp, khoa học, kèm theo những nguyên tắc bố trí chuẩn giúp bạn dễ dàng áp dụng.
Mặt bằng biệt thự 1 tầng là gì?
Mặt bằng biệt thự 1 tầng là bản vẽ thể hiện cách bố trí các không gian chức năng như phòng khách, phòng ngủ, bếp, nhà vệ sinh… trên cùng một tầng. Đây là yếu tố quyết định đến:
- Công năng sử dụng
- Sự tiện nghi trong sinh hoạt
- Khả năng thông gió, ánh sáng
- Phong thủy tổng thể

Tìm hiểu về mặt bằng biệt thự 1 tầng
Nguyên tắc thiết kế mặt bằng biệt thự 1 tầng khoa học
Để có một mặt bằng đẹp và hợp lý, bạn cần lưu ý:
1. Phân chia không gian rõ ràng
- Khu sinh hoạt chung: phòng khách, bếp
- Khu riêng tư: phòng ngủ
- Khu phụ: WC, kho, giặt phơi
2. Đảm bảo thông gió và ánh sáng
Ưu tiên thiết kế cửa sổ, giếng trời để tận dụng ánh sáng tự nhiên.
3. Tối ưu diện tích sử dụng
Tránh hành lang dài, không gian chết gây lãng phí diện tích.
4. Yếu tố phong thủy
- Hướng nhà phù hợp tuổi gia chủ
- Tránh đặt bếp, WC đối diện phòng ngủ
- Phòng khách nên đặt vị trí trung tâm

Nguyên tắc thiết kế mặt bằng biệt thự 1 tầng khoa học
Tổng hợp 10+ mẫu mặt bằng biệt thự 1 tầng đẹp theo nhu cầu thực tế
Các mẫu mặt bằng biệt thự 1 tầng hiện nay không chỉ đa dạng về phong cách mà còn tối ưu về công năng và trải nghiệm sống. Tùy vào diện tích đất, ngân sách và nhu cầu sử dụng, bạn có thể lựa chọn phương án phù hợp nhất.
Dưới đây là các mẫu mặt bằng biệt thự 1 tầng đẹp, bố trí khoa học để bạn tham khảo và áp dụng.
1. Mặt bằng biệt thự 1 tầng 2 phòng ngủ
Mẫu mặt bằng biệt thự 1 tầng 2 phòng ngủ được thiết kế theo hướng tối giản nhưng vẫn đảm bảo đầy đủ tiện nghi cho gia đình nhỏ. Không gian được bố trí khoa học trên cùng một mặt sàn, giúp việc di chuyển thuận tiện và tối ưu diện tích sử dụng.

Mặt bằng biệt thự 1 tầng 2 phòng ngủ
Bố trí công năng:
- Phòng khách đặt ngay sảnh chính, thông thoáng
- Bếp và phòng ăn liên thông, tối ưu diện tích
- 1 phòng ngủ master có WC riêng
- 1 phòng ngủ nhỏ + WC chung
Điểm nổi bật:
- Thiết kế đơn giản, hiện đại
- Có sân vườn và gara phía trước
- Phù hợp vợ chồng trẻ hoặc gia đình nhỏ
2. Mặt bằng biệt thự 1 tầng 3 phòng ngủ hiện đại
Mẫu thiết kế này hướng đến sự đơn giản, tinh tế với tone màu trung tính như trắng – xám – nâu kết hợp cây xanh.

Mặt bằng biệt thự 1 tầng 3 phòng ngủ hiện đại
Bố trí công năng:
- Phòng khách trung tâm
- Bếp + phòng ăn liên thông
- 3 phòng ngủ (1 master + 2 phòng nhỏ)
- 1-2 WC
Điểm nổi bật:
- Giếng trời giữa nhà giúp lấy sáng và thông gió tốt
- Gara rộng phía trước có thể đậu nhiều ô tô
- Phòng ngủ master tích hợp WC riêng tiện nghi
Phù hợp gia đình 4-6 người, yêu thích không gian hiện đại, ấm cúng
3. Mặt bằng biệt thự 1 tầng 4 phòng ngủ tiện nghi
Thiết kế dành cho gia đình đông thành viên, cần không gian riêng tư rõ ràng.
Bố trí công năng:
- Phòng khách + phòng ăn liên thông
- Bếp riêng biệt
- 4 phòng ngủ
- 2-3 WC
Điểm nổi bật:
- Không gian mở, kết nối sân trước và sân sau
- Bếp tách riêng giúp hạn chế mùi và dễ vệ sinh
- Các phòng ngủ bố trí tách biệt, đảm bảo riêng tư

Mặt bằng biệt thự 1 tầng 4 phòng ngủ tiện nghi lý tưởng cho gia đình nhiều thế hệ
4. Mặt bằng biệt thự 1 tầng không gian mở, độc đáo
Thiết kế mang tính sáng tạo cao, phù hợp gia chủ yêu thích sự khác biệt.
Bố trí công năng:
- Phòng khách – bếp – ăn liên thông
- 2-3 phòng ngủ
- Khu thư giãn, sân vườn, hồ bơi
Điểm nổi bật:
- Thiết kế mở, kết nối trực tiếp với sân vườn
- Gara rộng, không ảnh hưởng cảnh quan
- Có hồ bơi ngoài trời tăng tính nghỉ dưỡng
Phù hợp phong cách sống hiện đại, cao cấp

Mặt bằng biệt thự 1 tầng không gian mở, độc đáo
5. Mặt bằng biệt thự 1 tầng có hồ bơi, sân vườn
Mẫu nhà hướng đến trải nghiệm sống gần gũi thiên nhiên.
Bố trí công năng:
- Phòng khách nhìn ra hồ bơi
- Bếp + ăn rộng rãi
- 2-3 phòng ngủ
- Sân vườn bao quanh
Điểm nổi bật:
- Hồ bơi và cây xanh ngay trước nhà
- Không gian thoáng, nhiều ánh sáng tự nhiên
- Tạo cảm giác nghỉ dưỡng như resort

Mặt bằng biệt thự 1 tầng có hồ bơi, sân vườn
6. Mặt bằng biệt thự 1 tầng hiện đại, tối giản
Phong cách hiện đại với thiết kế tinh gọn, tối ưu diện tích.
Bố trí công năng:
- Phòng khách + ăn liên thông
- 2-3 phòng ngủ
- Khu tiểu cảnh nhỏ bên hông
Điểm nổi bật:
- Sử dụng tone trắng chủ đạo
- Không gian mở, ít vách ngăn
- Dễ thi công, tiết kiệm chi phí

Mặt bằng biệt thự 1 tầng hiện đại, tối giản
7. Mặt bằng biệt thự 1 tầng kiểu sân vườn
Phù hợp với những gia chủ yêu thiên nhiên và không gian sống xanh.
Bố trí công năng:
- Phòng khách, bếp, phòng ngủ hướng vườn
- 3-4 phòng ngủ
- Khu thư giãn ngoài trời
Điểm nổi bật:
- Sân trước và sau rộng rãi
- Tăng sự thông thoáng và ánh sáng
- Không gian sống trong lành, yên tĩnh

Mặt bằng biệt thự 1 tầng kiểu sân vườn
8. Mặt bằng biệt thự 1 tầng mái Thái
Đây là kiểu thiết kế phổ biến tại Việt Nam nhờ tính thẩm mỹ cao.
Bố trí công năng:
- Phòng khách trung tâm
- 3 phòng ngủ
- Bếp + ăn riêng
Điểm nổi bật:
- Kiến trúc cân đối, sang trọng
- Mái cao giúp chống nóng hiệu quả
- Phù hợp nhiều diện tích đất

Mẫu mặt bằng biệt thự 1 tầng mái Thái
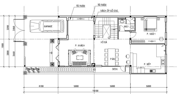
9. Mặt bằng biệt thự 1 tầng có gara ô tô
Thiết kế dành cho gia đình có xe, cần sự tiện lợi.
Bố trí công năng:
- Gara liền nhà hoặc tách riêng
- Phòng khách – bếp – ăn
- 2-4 phòng ngủ
Điểm nổi bật:
- Di chuyển thuận tiện
- Tối ưu diện tích sử dụng
- Bố trí hợp lý, không ảnh hưởng sinh hoạt

Mặt bằng biệt thự 1 tầng có gara ô tô
10. Mặt bằng biệt thự 1 tầng phong cách ấm cúng
Thiết kế sử dụng tone màu trung tính kết hợp ánh sáng vàng.
Bố trí công năng:
- Phòng khách, bếp, phòng ngủ tách nhẹ
- Khu giếng trời kết hợp tiểu cảnh
Điểm nổi bật:
- Tạo cảm giác gần gũi, thư giãn
- Không gian có chiều sâu và riêng tư
- Tăng giá trị thẩm mỹ tổng thể

Mặt bằng biệt thự 1 tầng phong cách ấm cúng
11. Mặt bằng biệt thự 1 tầng phân khu rõ ràng
Thiết kế chia khu chức năng hợp lý, nâng cao trải nghiệm sống.
Bố trí công năng:
- Khu sinh hoạt chung riêng
- Khu phòng ngủ riêng biệt
- Lối di chuyển logic
Điểm nổi bật:
- Đảm bảo riêng tư cho từng thành viên
- Dễ dàng bố trí nội thất
- Phù hợp gia đình có trẻ nhỏ

Mặt bằng biệt thự 1 tầng phân khu rõ ràng
Phân loại mặt bằng biệt thự 1 tầng theo diện tích xây dựng
Việc phân loại mặt bằng biệt thự 1 tầng theo diện tích sẽ giúp gia chủ dễ dàng lựa chọn mẫu thiết kế phù hợp với nhu cầu sử dụng, số lượng thành viên cũng như ngân sách đầu tư. Dưới đây là các nhóm diện tích phổ biến và gợi ý cách bố trí công năng tương ứng để bạn tham khảo.
1. Mặt bằng biệt thự 1 tầng 100-120m²
Bố trí:
- 2-3 phòng ngủ
- Phòng khách + bếp liên thông
- 1-2 WC
Ưu điểm:
- Chi phí thấp (từ 350 – 900 triệu)
- Thi công nhanh
- Phù hợp đất diện tích vừa

Mẫu mặt bằng biệt thự 1 tầng 100-120m²
2. Mặt bằng biệt thự 1 tầng 150-180m²
Bố trí:
- 3-4 phòng ngủ
- Phòng khách riêng
- Bếp + ăn rộng
- Có phòng thờ
Ưu điểm:
- Đáp ứng đầy đủ nhu cầu sinh hoạt
- Không gian thoáng, dễ thiết kế

Mẫu mặt bằng biệt thự 1 tầng 150-180m²
3. Mặt bằng biệt thự 1 tầng trên 200m²
Bố trí:
- 4-5 phòng ngủ
- Phòng khách lớn
- Phòng sinh hoạt chung
- Có thể thêm phòng gym, spa
Ưu điểm:
- Không gian rộng rãi
- Tính cá nhân hóa cao
- Phù hợp gia đình đông người

Mẫu mặt bằng biệt thự 1 tầng trên 200m²
Những sai lầm thường gặp khi thiết kế mặt bằng biệt thự 1 tầng
Dù sở hữu diện tích rộng rãi, nhiều gia chủ vẫn gặp phải các lỗi bố trí khiến không gian sống kém tiện nghi, lãng phí diện tích hoặc phát sinh chi phí không cần thiết. Dưới đây là những sai lầm phổ biến bạn nên tránh khi thiết kế mặt bằng biệt thự 1 tầng:
- Bố trí công năng chưa hợp lý: Sắp xếp phòng khách, bếp, phòng ngủ thiếu logic sẽ gây bất tiện khi sinh hoạt. Nên phân khu rõ ràng giữa không gian chung và riêng.
- Lãng phí diện tích: Hành lang dài, góc chết nhiều làm giảm hiệu quả sử dụng. Cần tối ưu lối đi và tận dụng không gian thông minh.
- Thiếu ánh sáng, thông gió: Ít cửa sổ hoặc không có giếng trời khiến nhà bí bách. Nên ưu tiên thiết kế mở, đón gió và ánh sáng tự nhiên.
- Thiếu tính riêng tư: Phòng ngủ đặt gần khu sinh hoạt chung dễ bị ảnh hưởng tiếng ồn. Cần bố trí ở vị trí yên tĩnh hơn.
- Không tính nhu cầu lâu dài: Thiết kế chỉ phù hợp hiện tại, không dự phòng tương lai sẽ gây bất tiện. Nên có không gian linh hoạt.
- Bỏ qua yếu tố phong thủy: Hướng nhà, bếp, phòng ngủ không hợp có thể ảnh hưởng tâm lý và tài vận.
- Thiếu kết nối với sân vườn: Biệt thự 1 tầng mà không tận dụng không gian xanh sẽ làm giảm giá trị sống.
- Dự toán chi phí chưa sát: Thiết kế vượt ngân sách dễ phát sinh chi phí khi thi công.

Những sai lầm thường gặp khi thiết kế mặt bằng biệt thự 1 tầng
Đơn vị thiết kế mặt bằng biệt thự 1 tầng uy tín
Khi thiết kế mặt bằng biệt thự 1 tầng, việc lựa chọn đúng đơn vị thiết kế sẽ giúp bạn tối ưu công năng, đảm bảo thẩm mỹ và kiểm soát tốt chi phí xây dựng.
Kiến Trúc Văn Hưng là đơn vị chuyên thiết kế – thi công biệt thự, nhà phố với nhiều năm kinh nghiệm, nổi bật với các phương án mặt bằng khoa học, sát thực tế và phù hợp ngân sách.

Kiến Trúc Văn Hưng – Đơn vị thiết kế mặt bằng biệt thự 1 tầng uy tín tại HCM
Thế mạnh nổi bật:
- Tối ưu công năng, hạn chế diện tích dư thừa
- Thiết kế đa phong cách: hiện đại, mái Thái, tân cổ điển…
- Tư vấn theo nhu cầu thực tế và yếu tố phong thủy
- Hồ sơ chi tiết, dễ thi công, hạn chế phát sinh
- Đồng hành từ ý tưởng đến hoàn thiện
Thông tin liên hệ:
- Hotline: 0901-835-397
- Email: congtyvanhungsaigon@gmail.com
Liên hệ Văn Hưng ngay để được tư vấn phương án mặt bằng biệt thự 1 tầng tối ưu, đẹp và phù hợp chi phí.
Một mặt bằng biệt thự 1 tầng đẹp, bố trí khoa học không chỉ mang lại sự tiện nghi trong sinh hoạt mà còn nâng cao chất lượng sống cho cả gia đình. Việc lựa chọn đúng phong cách thiết kế, diện tích phù hợp và đơn vị triển khai uy tín sẽ giúp bạn sở hữu không gian sống lý tưởng, bền vững theo thời gian.
Hy vọng qua 10+ mẫu thiết kế mặt bằng biệt thự 1 tầng trên, bạn đã có thêm nhiều ý tưởng để định hình tổ ấm tương lai của mình. Nếu cần tư vấn chi tiết hoặc thiết kế riêng theo nhu cầu, đừng ngần ngại liên hệ Kiến Trúc Văn Hưng để được hỗ trợ nhanh chóng và chính xác nhất.
